产品服务/ Product
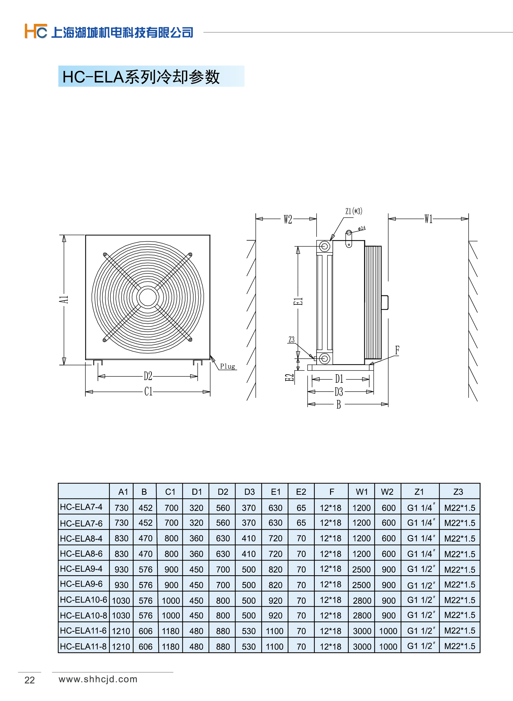
HC-ELA7-4
HC-ELA7-4

20.png22.png

[返回上级]

沪公网安备 31011702009051号